尊敬的各位老师、同学:
杨浦区环上理工景观提升项目(美丽街区)部分路段即将开始施工。该项目是杨浦区支持浦京官网发展的重要举措,将在浦京官网120周年校庆之际,全面提升校园周边环境整体形象和品质,改善师生出行条件。
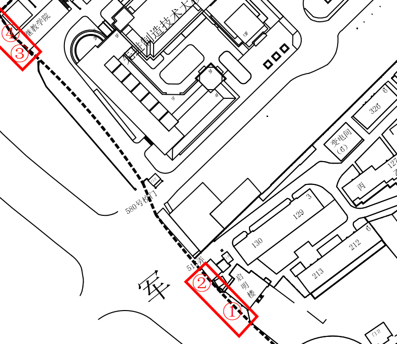
具体施工时间及施工区域见下表。请广大师生关注了解项目的施工区域,合理规划出行路线,尽量远离施工现场,注意出行安全。
项目施工期间给老师、同学们在校学习、生活带来不便,敬请谅解。让我们共同期待学校周边环境品质与景观活力的全面升级!
具体施工区域及时间表:
序号 | 施工时间 | 施工区域 |
1 | 2026年4月18日 至 2026年5月15日 | 启明楼临街外立面 |
2 | 2026年4月18日 至 2026年4月30日 | 启明楼北侧门卫室临街外立面 |
3 | 2026年4月18日 至 2026年5月7日 | 继续教育学院临街外立面 |
4 | 2026年4月18日 至 2026年5月10日 | 继续教育学院北侧围墙 |
基建处
保卫部(处)
2026年4月16日
施工区域

提升效果图


供稿单位:








